94474 Vilshofen

Immobilie mit Entwicklungspotenzial!

Beschreibung

Bitte beachten Sie: Die vorhandenen Planungen und Visualisierungen dienen ausschließlich der Veranschaulichung. Eine baurechtliche Genehmigung liegt derzeit nicht vor; es kann keine Gewähr dafür übernommen werden, dass die dargestellten Entwürfe in dieser Form realisierbar sind.

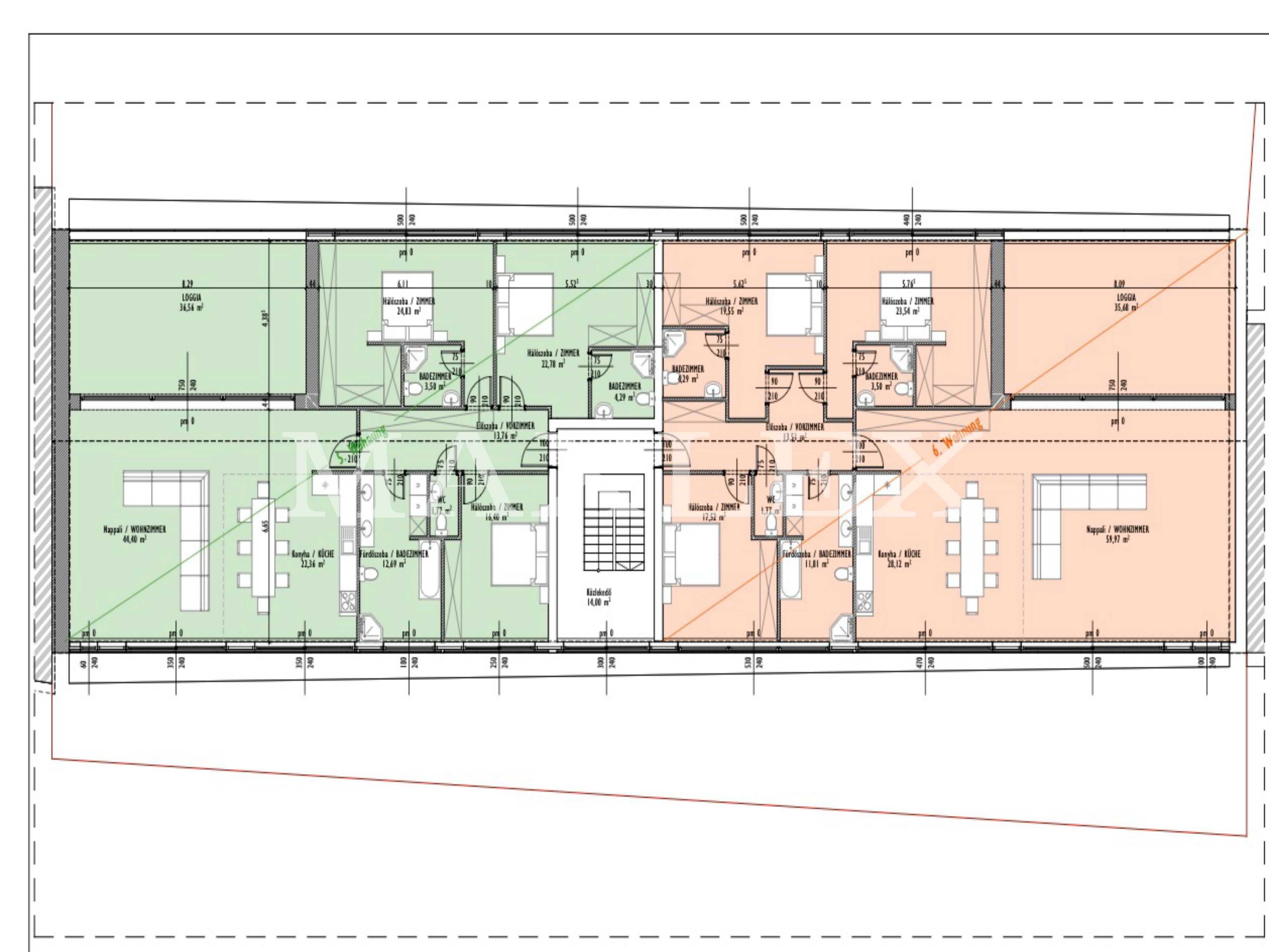
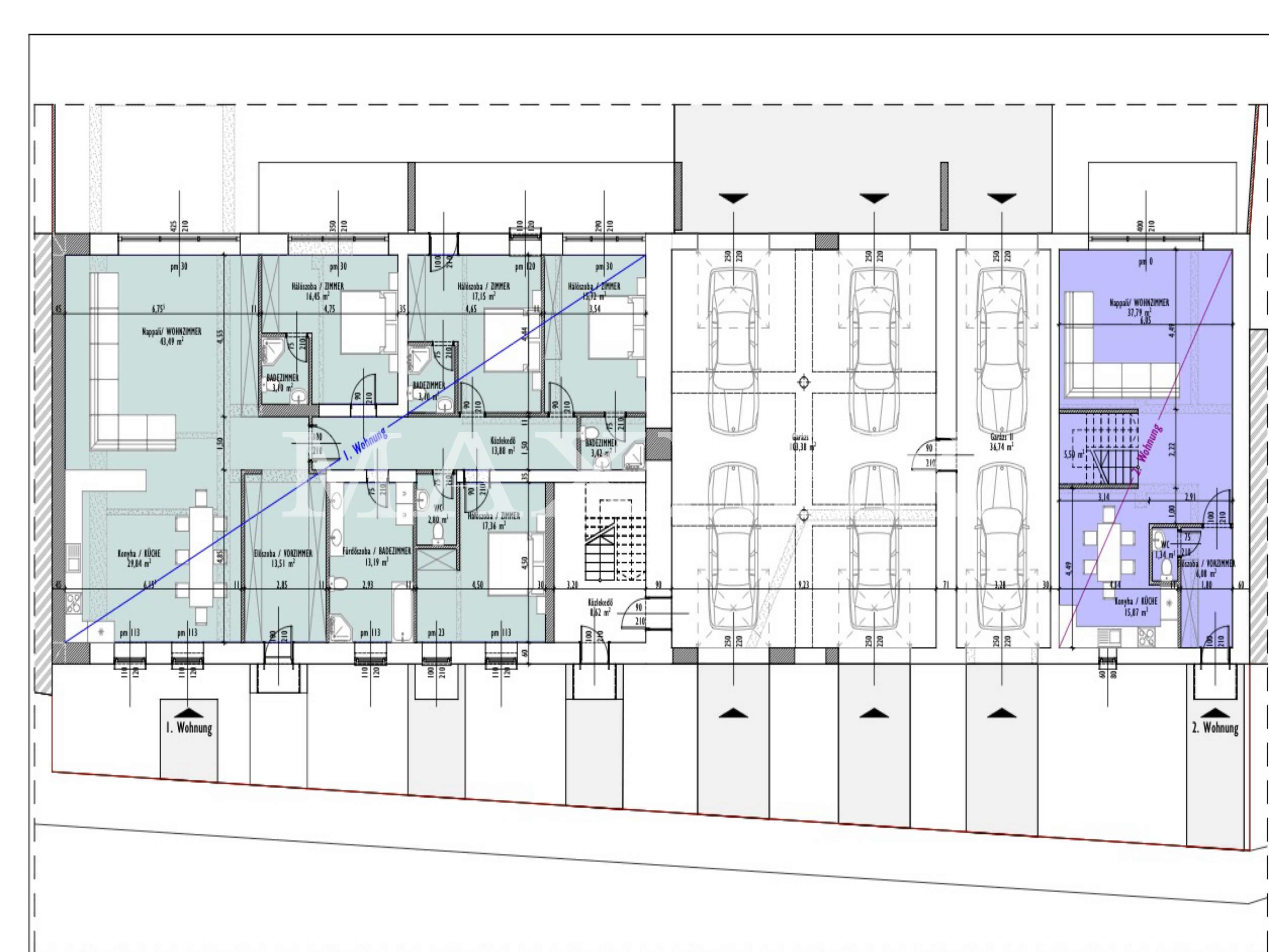
Dieses Sanierungsobjekt (Reihenmittelhaus) bietet eine hervorragende Gelegenheit für Investoren und Bauträger. Das bestehende Gebäude muss vollständig saniert werden.
Die derzeitige Wohnfläche beträgt ca. 455 m², zusätzlich stehen ca. 83 m² Nutzfläche zur Verfügung. Eine bereits erarbeitete Planung (noch nicht genehmigt) verdeutlicht das Entwicklungspotenzial: Durch eine Aufstockung auf drei Geschosse kann die Wohnfläche auf ca. 755 m² erweitert werden. In der aktuellen Planung ergibt sich daraus die Möglichkeit, bis zu 7 Wohneinheiten zu realisieren.
Auch die notwendige Infrastruktur ist berücksichtigt: Garagen und Stellplätze sind eingeplant, sodass für alle Wohneinheiten ausreichend Parkmöglichkeiten zur Verfügung stehen.

Highlights für Investoren:
Bestandsgebäude mit ca. 455 m² Wohnfläche
Zusätzlich ca. 83 m² Nutzfläche
Erweiterung auf ca. 755 m² Wohnfläche durch Aufstockung möglich
Geplante Aufstockung auf 3 Geschosse
Schaffung von bis zu 7 Wohneinheiten laut Planung
Stellplätze & Garagen in ausreichender Anzahl vorgesehen
Planung & Visualisierungen nur zur Veranschaulichung (Genehmigung noch ausstehend)

Ein Energieausweis ist gemäß § 2 Abs. 2 Nr. 2 GEG nicht erforderlich, da das Gebäude über keine Heizungsanlage verfügt.

Details

Allgemeine Informationen

Baujahr ca.:unbekannt

Eckdaten

Zimmer:22

Wohnfläche ca.:ca. 455 m²

Etagenanzahl im Gebäude:2

Grundstücksgröße:1136 m²

Zustand

Objektzustand:Sanierungsbedürftig

Ausstattung

Balkon:Nein

Terrasse:Nein

Abstellraum:Nein

Zahlen & Fakten

Kaufpreis: 490.000 €

Käuferprovision:3,57% inkl. MwSt.

Energieausweis

Energieausweistyp:Ein Energieausweis ist gemäß § 2 Abs. 2 Nr. 2 GEG nicht erforderlich, da das Gebäude über keine Heizungsanlage verfügt.

Provisionshinweis

3,57 % Käuferprovision inkl. MwSt., verdient und fällig mit Beurkundung des notariellen Kaufvertrages. Der Immobilienmaklerin hat einen provisionspflichtigen Maklervertrag mit dem der Verkäufer in gleicher Höhe abgeschlossen.

Virtueller 3D-Rundgang

Lage

Das Objekt befindet sich in Seestetten bei Sandbach, in günstiger Lage zwischen Passau und Vilshofen. Nach Passau sind es ca. 14 km, nach Vilshofen ca. 9 km – beide Städte sind über die nahegelegene B8 schnell erreichbar.
Die Lage bietet eine gute Anbindung an den regionalen Verkehr und verbindet die Vorteile einer ruhigen Wohngegend mit der Nähe zu den wirtschaftlich attraktiven Standorten Passau und Vilshofen. Einkaufsmöglichkeiten, Schulen und Einrichtungen des täglichen Bedarfs sind in den umliegenden Ortschaften vorhanden.

Ansprechpartner

Bild von Maximilian Saller

Maximilian Saller

Immobilienfachberater

Unterschrift von Maximilian Saller Kontakt aufnehmen
WhatsApp Icon
E-Mail Icon
Telefon Icon
Pfeil nach oben